
Çiğli'de 11.388 Metrekarelik Arsaya Akaryakıt İstasyonu İmarı!
İzmir'in Çiğli ilçesinde Anadolu Caddesi üzerinde yer alan 11.388 metrekarelik arsanın imar planı değişti. Şahıs mülkiyetinde olan arsanın imar planı konuttan akaryakıt ve servis istasyonuna dönüştü.
A+A-
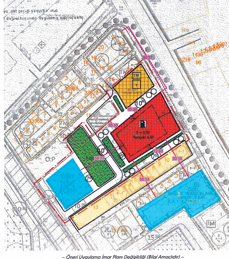
İzmir'in Çiğli ilçesi Küçükçiğli mahallesi 33 570 ada 16,17 ve 26 adada yer alan arsanın imar planında değişikliğe gidildi.
İzmir Büyükşehir Belediyesi tarafından hazırlanan plan değişikliği onaylanarak askıya çıkarıldı.
Çiğli Mozaik fabrikasının yer aldığı arsanın mülkiyeti Ayşe Balcı ve Murat Balcı'ya ait.
KONUT İMARI AKARYAKIT İMARINA DÖNDÜ
Yapılan plan değişikliği ile beraber konut olan imar durumu akaryakıt istasyonu ve servis alanı olarak değiştirildi. Planda merkezi iş alanı da ayrıldı.
Yapılan değişiklikle beraber arsanın;
1.128 metrekaresi Merkezi İş Alanı,
2.982 metrekaresi Akaryakıt ve Servis İstasyonu
2.002 metrekaresi park
1.520 metrekaresi ise cami alanı olarak ayrıldı.







HABERE YORUM KAT
Türkçe karakter kullanılmayan ve büyük harflerle yazılmış yorumlar onaylanmamaktadır.